1929cc威尼斯
首页
(current)
关于1929cc威尼斯
1929cc威尼斯简介
集团概况
生长历程
主要客户
企业声誉
产品资讯
汽车马达
汽车空调管路
研发实力
研发手艺
实验室实验能力
产品专利·著作权
人力资源
福利制度
加入1929cc威尼斯
公司动态
公司新闻
公司通告
社会责任
联系1929cc威尼斯
联系方式
信息反馈
繁
EN
繁体
English
首页
关于1929cc威尼斯
产品资讯
研发实力
人力资源
公司动态
联系1929cc威尼斯
新闻资讯
公司新闻
公司通告
社会责任
新闻资讯
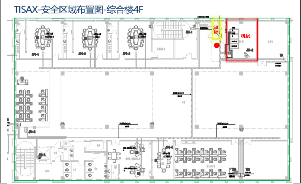
清静区域安排图
2023-02-18
治理部
2023年2月18日
返回
最新文章推荐
2025信息清静政策愿景与目的
2025资安年度教育训练妄想表
2024信息清静政策愿景与目的
2024资安年度教育训练妄想表
信息清静事务转达责任
【网站地图】
公司通告 - 1929cc威尼斯